Nautawerf 32

2265 CW

 Leidschendam

€ 2.195.000

 v.o.n.

317 m2 wonen

570 m2 perceel

6 slaapkamers

A +++ energielabel

De villa, prijkt op de kop van de haven en beschikt over een eigen ligplaats. Met de mooie, grote ramen is een vrij uitzicht gegarandeerd over de Vliet, weilanden en landerijen richting Voorschoten. De villa heeft een riante tuin op het zuidoosten. Vanuit de tuin heeft u toegang tot een grote berging en dubbele garagebox, waar 2 auto’s kunnen staan.

INDELING
Via de deur in de hal treft u een openverbinding naar de royale woonkeuken en eetkamer. De eetkamer (ca. 35m2) biedt met grote ramen en dubbele openslaande deuren toegang tot een terras (ca. 110 m2) met wijds uitzicht over de vliet . Aan de andere zijde van de woning treft u de study (ca. 18 m2) en vrij gesitueerde woonkamer (ca. 39m2). De woonkamer is lekker licht en ruim. Via de dubbele openslaande deuren loopt u het terras van ca 110m2 op met fantastisch uitzicht op de Vliet en Duivenvoordecorridor.

Veel mogelijkheden
Een verdieping hoger zijn er twee badkamers en vier slaapkamers van ca. 10,11, 20 en 25 m2. De masterbedroom heeft met dubbele openslaande deuren toegang tot een terras (ca. 20m2). De twee badkamers van ca. 7m2 beschikken beiden over een luxe indeling met bad, douche en dubbele wastafel. 

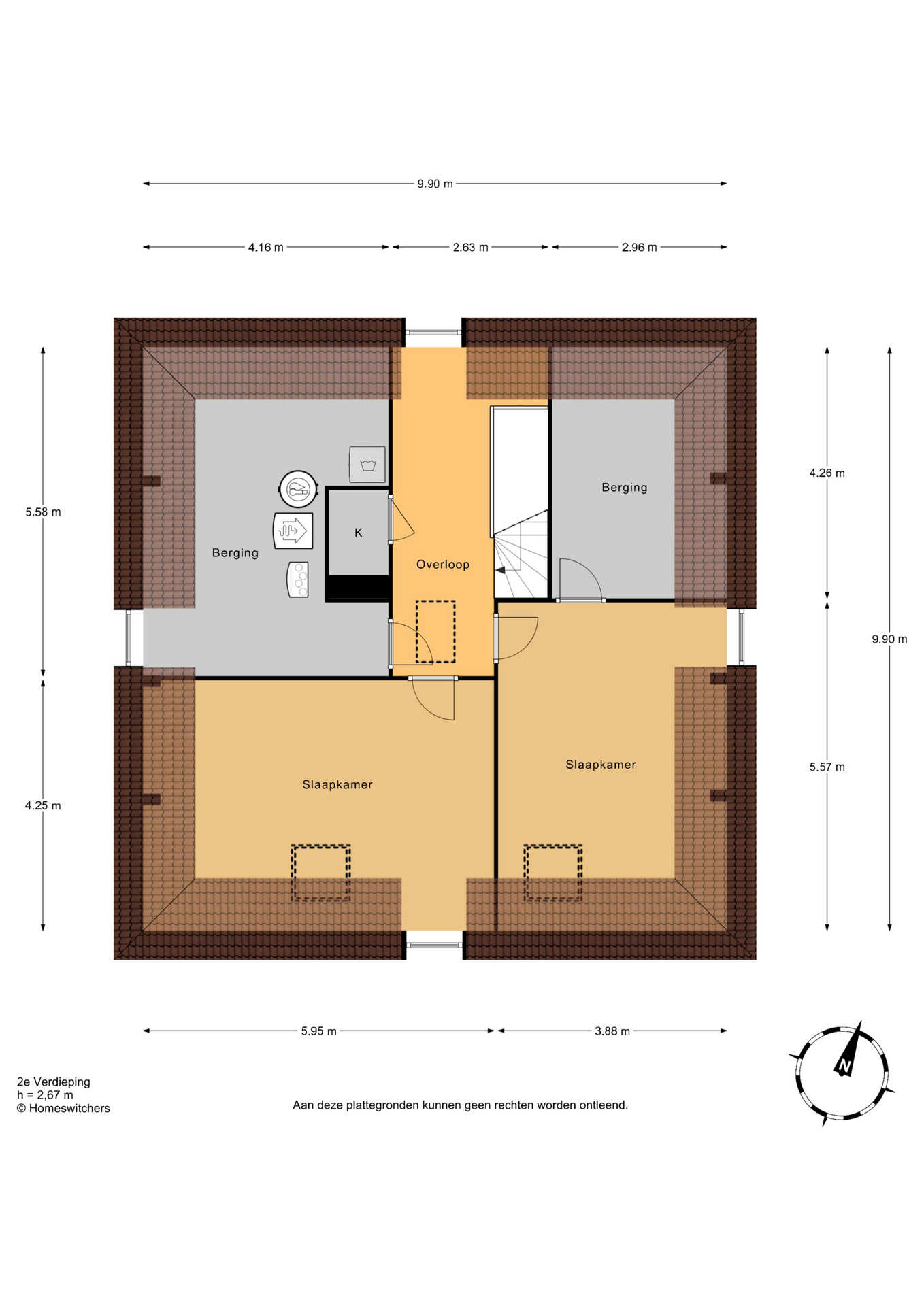
Op de tweede verdieping zijn twee slaapkamers gesitueerd van ca. 8 en 10 m2. Deze verdieping beschikt over een WC, aparte bergruimte (ca. 8m2) en technische ruimte/berging met opstelplaats voor wasmachine en wasdroger waar optioneel een derde badkamer gerealiseerd kan worden.

LIGPLAATS
Bijzonder aan Vliethaven is de haven in het hart van het plan. Hiervandaan vaart u onder het mooie bruggetje door zo de Vliet op richting het gezellige centrum van Leiden, natuur- en recreatiegebied Vlietlanden, de sluisjes van Leidschendam, de Kagerplassen en het Braassemermeer.

BEREIKBAARHEID
In nieuwbouwproject Vliethaven kunt u straks fantastisch wonen op de grens van het prachtige natuurgebied De Duivenvoordecorridor. In de gemeente Leidschendam-Voorburg, richting het ook zo gezellige Voorschoten. Een unieke locatie door de cultuurhistorische en landschappelijke kwaliteiten en centrale ligging. Hiervandaan bent u ook zo op de A44, de A4 of de A12 richting Den Haag, Leiden, Amsterdam, Utrecht en Rotterdam. Ook de bus stopt in de buurt en vanuit Vliethaven kunt u natuurlijk ook per boot reizen! Via de Vliet is er een directe vaarverbinding naar onder meer Vlietlanden, Leiden, de sluisjes van Leidschendam, de Kagerplassen en het Braassemermeer.

Dit is een nieuwbouwproject zoals u maar zelden ziet; duurzame woningen met een grote diversiteit aan woningtypes. Royale appartementen en penthouses, prachtige vrijstaande villa’s, sfeervolle havenwoningen en de ideale gezinshuizen. Uiterst duurzaam ontwikkeld conform de BENG-2021 eisen. Goed voor mens en milieu!

De realisatie van dit stijlvolle nieuwbouwproject is in handen van Niersman Bouw Haaglanden. Een allround bouwonderneming die al ruim 150 jaar actief is in de Randstad en aangrenzende regio’s. Vliethaven wordt verkocht en gebouwd met het garantiecertificaat van Woningborg N.V. De kwaliteit en oplevering van de woningen is zodoende te allen tijde geborgd.

DETAILS
• Kaveloppervlakte: ca. 570 m2
• Woonoppervlakte: ca. 317 m2
• Ingedeeld met 6 slaapkamers
• WTW installatie
• Zonnepanelen
• Vloerverwarming en vloerkoeling
• Gasloos met energielabel A+++
• Individuele warmtepomp met een gesloten verticale bron
• Tuinligging zuidoost
• Terras van maar liefst 110 m2
• Eigen ligplaats in de haven

INTERESSE IN DIT HUIS?

Bel direct met één van de makelaars over de mogelijkheden voor aankoop van deze vlietvilla.

De gegeven informatie is met zorgvuldigheid opgesteld, aan de juistheid kunnen echter geen rechten worden ontleend.

Algemeen

Vraagprijs: 2195000
Status: BESCHIKBAAR
Aanvaarding: In overleg

Energie

Energielabel: A +++
Isolatie: Volledig geisoleerd, Driedubbel glas
Verwarming: Vloerverwarming geheel, Warmtepomp
Warm water: Aardwarmte

Bouw

Soort woonhuis: Villa
Type: Vrijstaande woning
Soort bouw: Nieuwbouw

Buitenruimte

Type buitenruimte(s): Tuin rondom
Hoofdtuin achterom: 1

Oppervlakte en inhoud

Woonoppervlakte: 317m2
Inhoud: 856m3
Perceeloppervlakte: 570m2

Indeling

Aantal verdiepingen: 3
Aantal kamers: 11
Slaapkamers: 6
Aantal badkamers: 2

Nieuwsbrief

Wilt u op de hoogte blijven van ons actuele aanbod in zowel bestaande bouw als nieuwbouw? Meld u dan aan voor onze maandelijkse nieuwsbrief!

Interesse?

Bel ons op:

Voorburg

Nootdorp